NEW HOME DESIGNS
Projects
Testimonials
AVAILABLE POSITIONS
About Us
Contact
Back
Residential
Commercial
Pools & Landscaping
Concreting
Back
About Us
NEW HOME DESIGNS
Projects
Residential
Commercial
Pools & Landscaping
Concreting
Testimonials
AVAILABLE POSITIONS
About Us
About Us
Contact
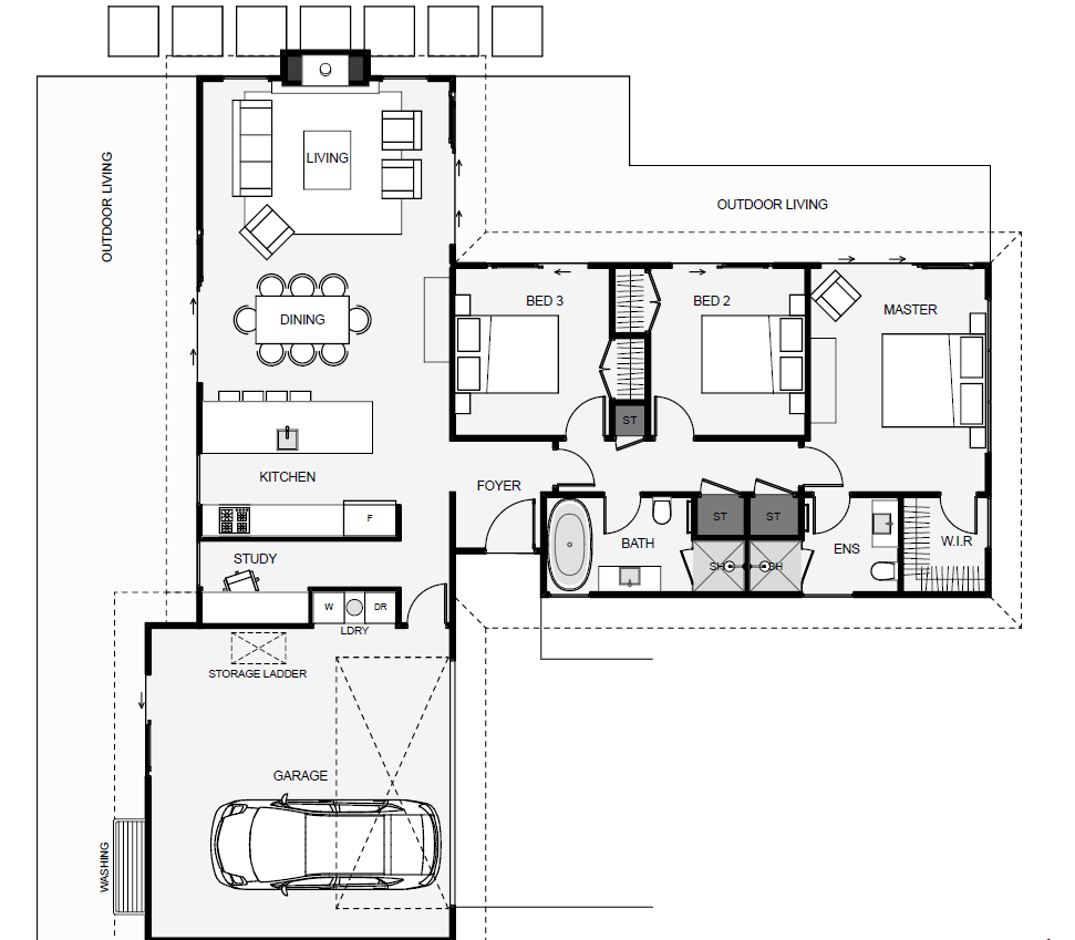
This three-bedroom home is designed with a layout that takes advantage of both morning and evening sun with its dual outdoor living.
MEASUREMENTS
Floor Space 156m2
Garage Space x2 Cars
Bedrooms 3+
Bathrooms 2
Length 16.3 m
Width 16.3 m